Villa singola in vendita

Portogruaro, Via Viola di Summaga - Summaga
€ 239.000
5 locali 5 locali
265 Mq 265 Mq
2 bagni 2 bagni

Villa singola in vendita

Portogruaro, Via Viola di Summaga - Summaga

Descrizione annuncio

Desideri una villa indipendente immersa nella tranquillità, a pochi minuti da tutti i servizi?

La nostra agenzia propone un immobile situato a Portogruaro, nella tranquilla frazione di Summaga.

La proprietà si trova in una zona riservata e immersa nel verde, lontana dal caos cittadino, ideale per chi desidera privacy e serenità senza rinunciare alla comodità dei servizi.

Il giardino di circa 1.800 m², ricco di alberi e piante di diverse varietà, incornicia l’abitazione rendendola un luogo estremamente piacevole e armonioso.

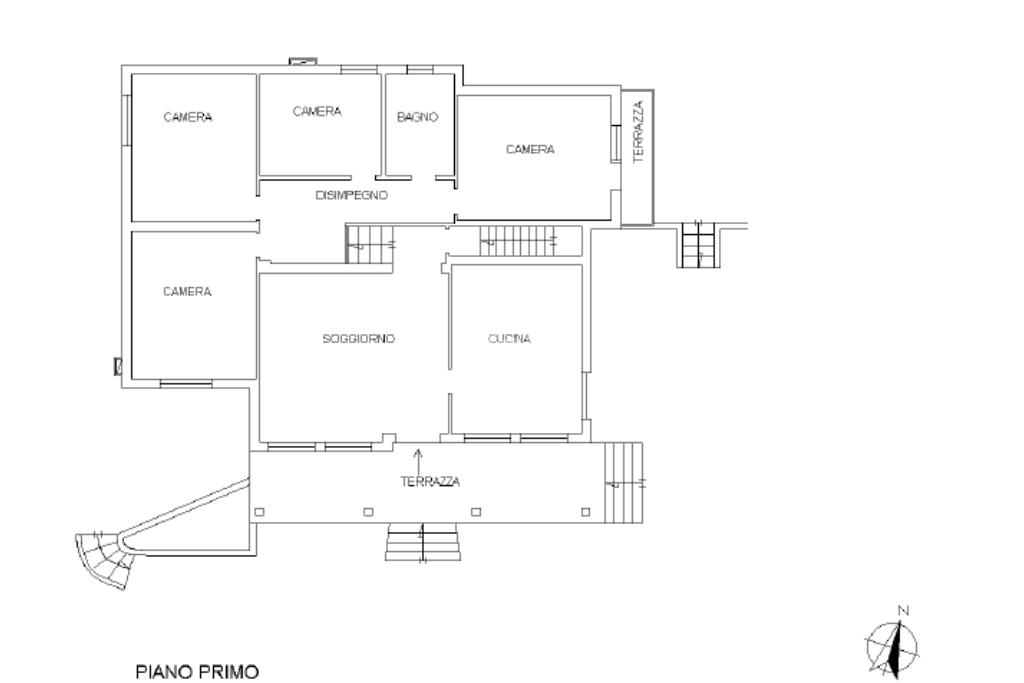
Per accedere all’immobile si attraversa un ampio porticato con vista sul giardino, che conduce alla luminosa zona giorno. Qui troviamo cucina e soggiorno separati: il soggiorno è impreziosito da un bellissimo caminetto a legna, perfetto per creare un’atmosfera calda e accogliente nelle stagioni più fredde; la cucina è abitabile e spaziosa, con la possibilità di ospitare pranzi e cene in compagnia.

Un comodo disimpegno accompagna alla zona notte, composta da un bagno e quattro camere da letto, di cui una con terrazzo.

Completano la proprietà due garage al piano terra, una taverna, un bagno di servizio e una lavanderia.

L’immobile dispone inoltre di una cantina di circa 80 m², un tempo utilizzata come laboratorio per la produzione di vino: uno spazio versatile che può mantenere la stessa funzione oppure essere adibito ad altri utilizzi in base alle proprie esigenze.

Per scoprire questa proprietà e ricevere maggiori informazioni, contatta l’agenzia e fissa un appuntamento.

Mostra tutto

Nelle vicinanze

Trasporto pubblico Trasporto pubblico
Lison
Lison
2,4 Km
Pradipozzo - Fornace
Pradipozzo - Fornace
1,3 Km
Pradipozzo
Pradipozzo
1,9 Km
Ricariche auto elettriche Ricariche auto elettriche
Portogruaro Martiri del Lavoro di Marcinelle | EnelX
1,3 Km
Scuole Scuole
Scuole
1,6 Km
Bar Bar
Bar
2,2 Km
Ristoranti Ristoranti
Agriturismo Ca' Menego
2,3 Km
Casa del Trattore
2,9 Km
Mostra tutto

Caratteristiche

Rif.:
61180533
Piano:
Su più livelli di 3
Totale piani:
3
Box:
2
Posti auto:
2
Terrazzi:
2
Mostra tutto
Prezzo Prezzo
€ 239.000
Rata mutuo Rata mutuo
€ 1.135 / mese
Proponi il tuo prezzoProponi il tuo prezzo

Classe Energetica

E
E
E
E
E
E
E
E
E
EP globale non rinnovabile:
145.08 kW h/m² anno
EP globale rinnovabile:
1.06 kW h/m² anno
EP invernale del fabbricato:
EP estiva del fabbricato:
Anno di costruzione:
1977
Riscaldamento:
Autonomo
Tipo impianto:
A radiatori
Tipo alimentazione:
GPL

Ti interessa visionare l'immobile?

Fissa un appuntamento  Fissa un appuntamento

Richiedi informazioni

Clicca su Leggi per aprire l'informativa
* Questi campi sono obbligatori

Calcola il tuo mutuo

Semplice e senza impegno
Anticipo

( % )
Mutuo

( % )

pochi semplici passi

inserisci i tuoi dati
Questionario completato
Grazie per aver richiesto un appuntamento senza impegno con un nostro Consulente del Credito e Assicurativo.

Hai inserito correttamente tutti i dati necessari e a breve riceverai una e-mail con un link da convalidare per inviare i tuoi dati.
Affiliato
Porto Associati Sas
Borgo Sant' Agnese, 56 30026 Portogruaro (VE)

Il nostro staff


  • Michael Cincotti
    Affiliato

  • Alan Daneluzzo
    Collaboratore

  • Paula Ioana Iauta
    Affiliata

  • Milena Valentino
    Collaboratrice
Borgo Sant' Agnese, 56 30026 Portogruaro (VE)
Zona: Portogruaro
Mostra su mappa
Affiliato
Porto Associati Sas
Borgo Sant' Agnese, 56 30026 Portogruaro (VE)

2026 Tecnocasa Franchising S.p.A. - P. IVA 08365160152 - Via Monte Bianco 60/A 20089 Rozzano (MI). Ogni agenzia ha un proprio titolare ed è autonoma. Privacy policy | Policy utilizzo | Cookie policy